Interior renovation of single-family home. Design development, construction documents, permitting (2015-16)

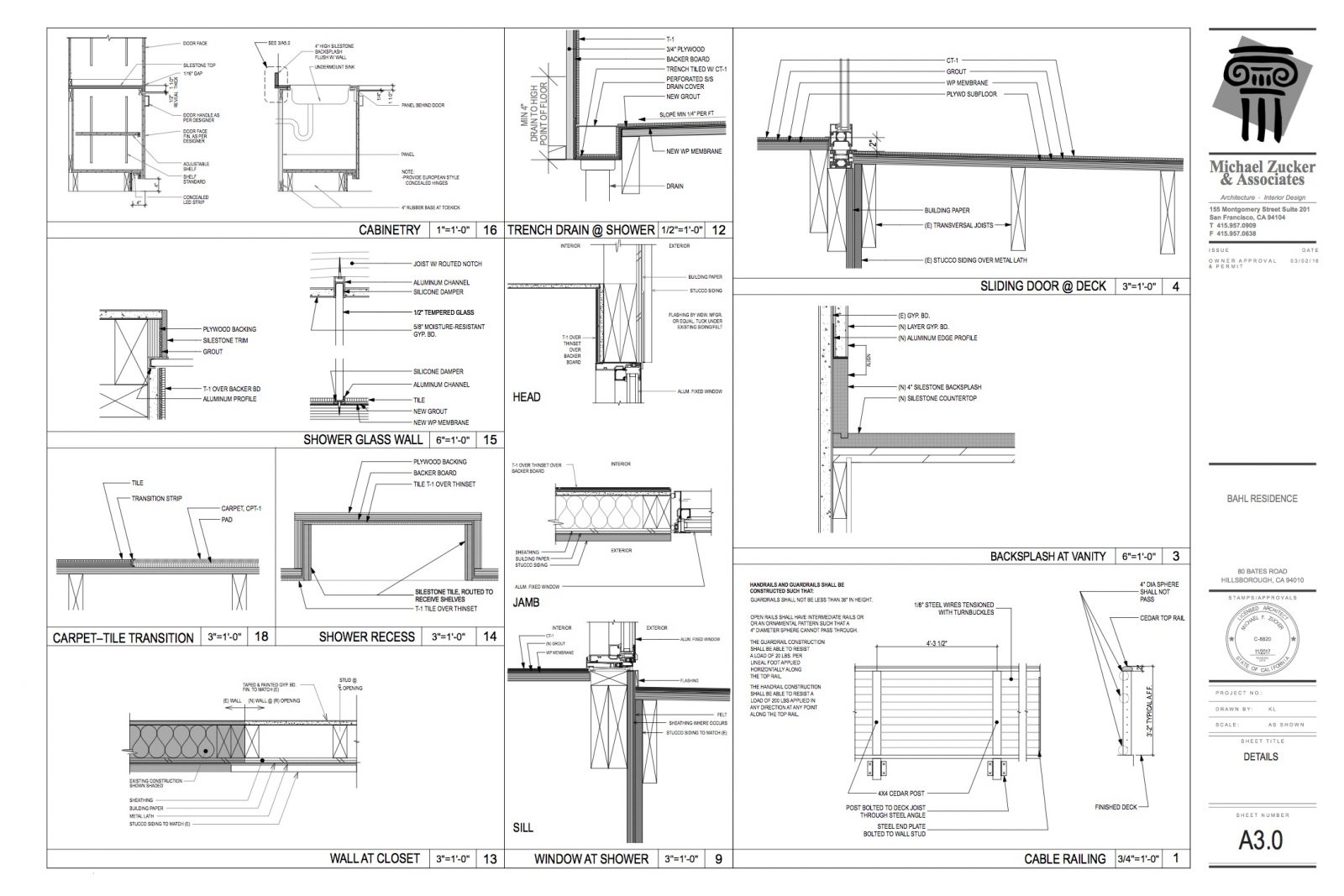
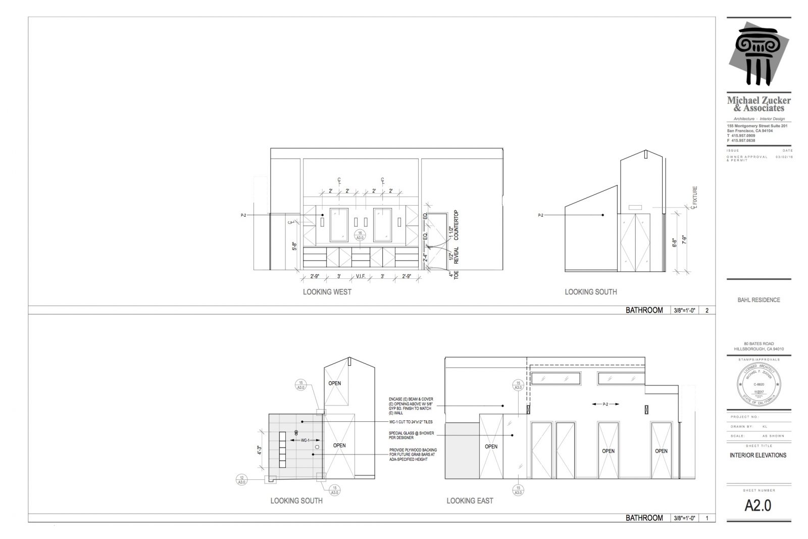
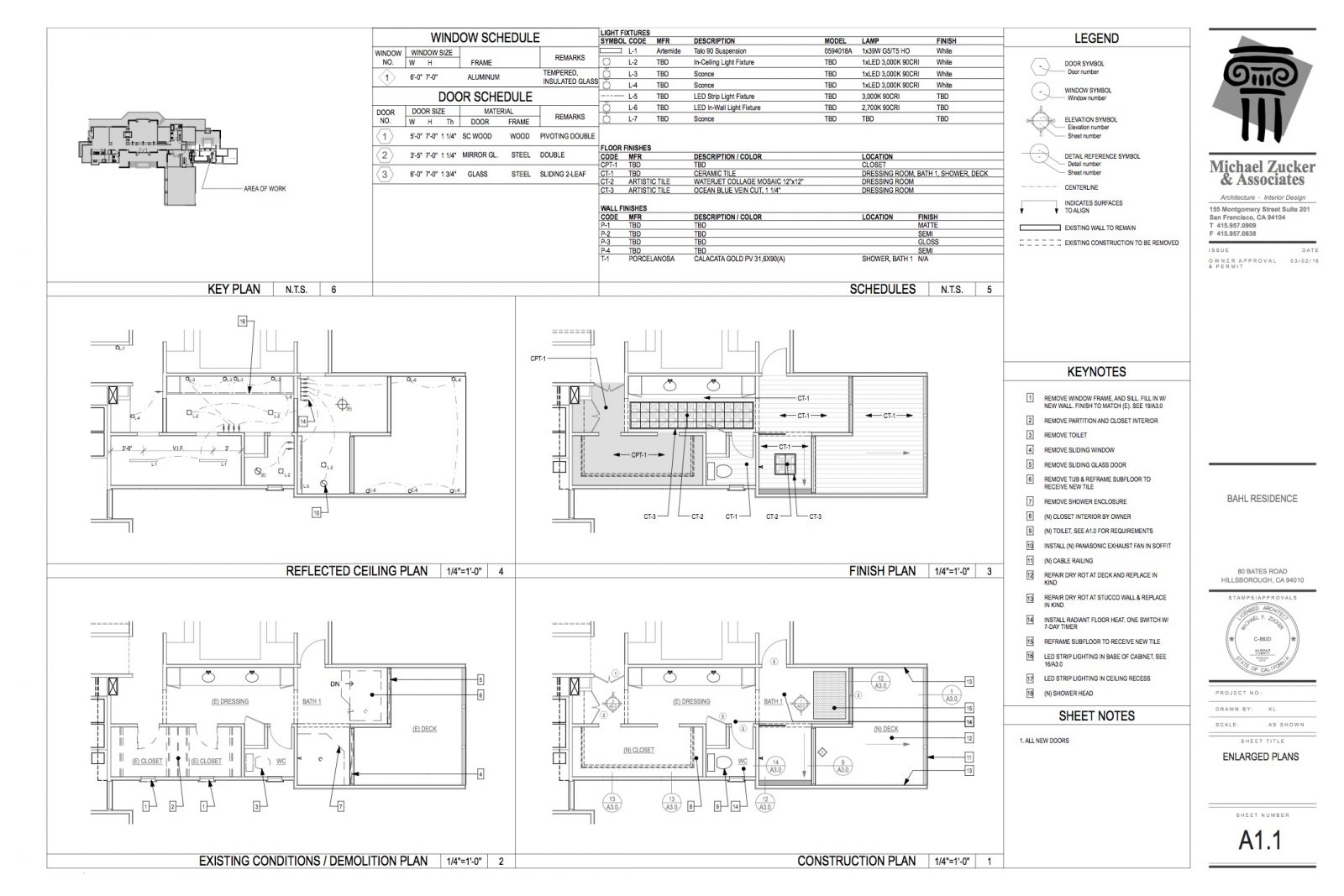
80-bates_1
80-bates_2

80-bates_3

80-bates_4