Kalle Lindgren Work Samples
Menu
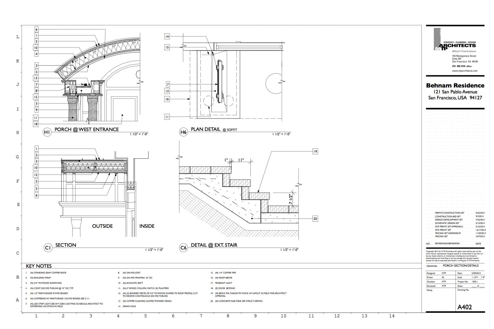
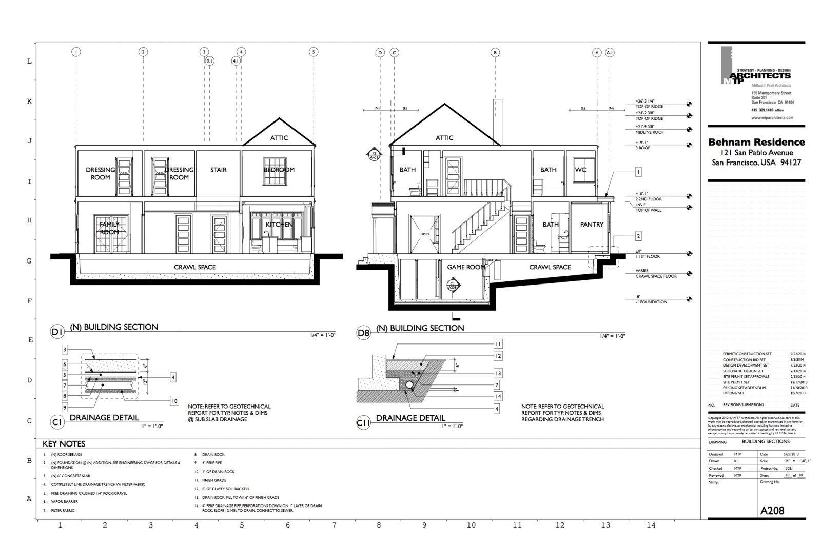
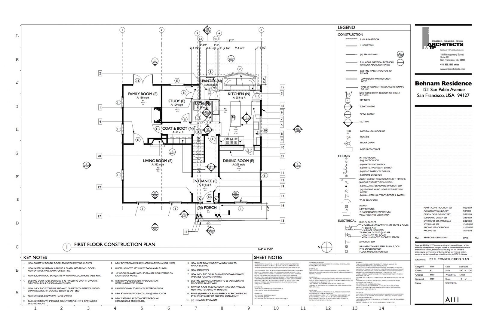
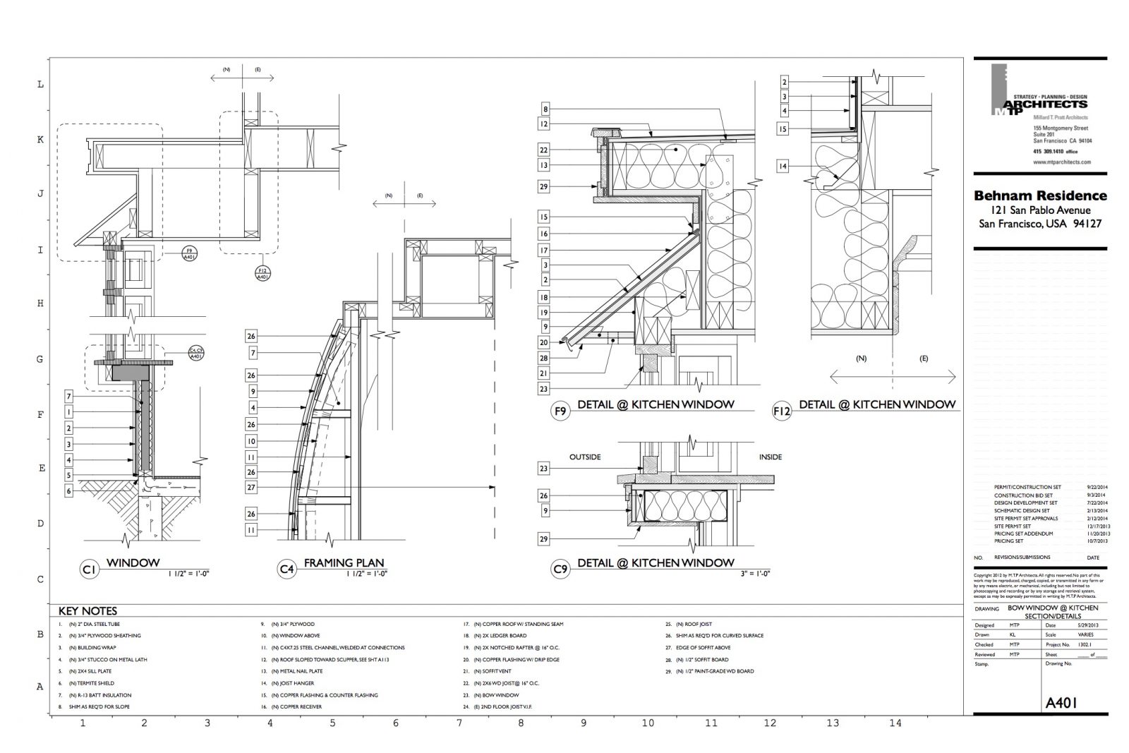
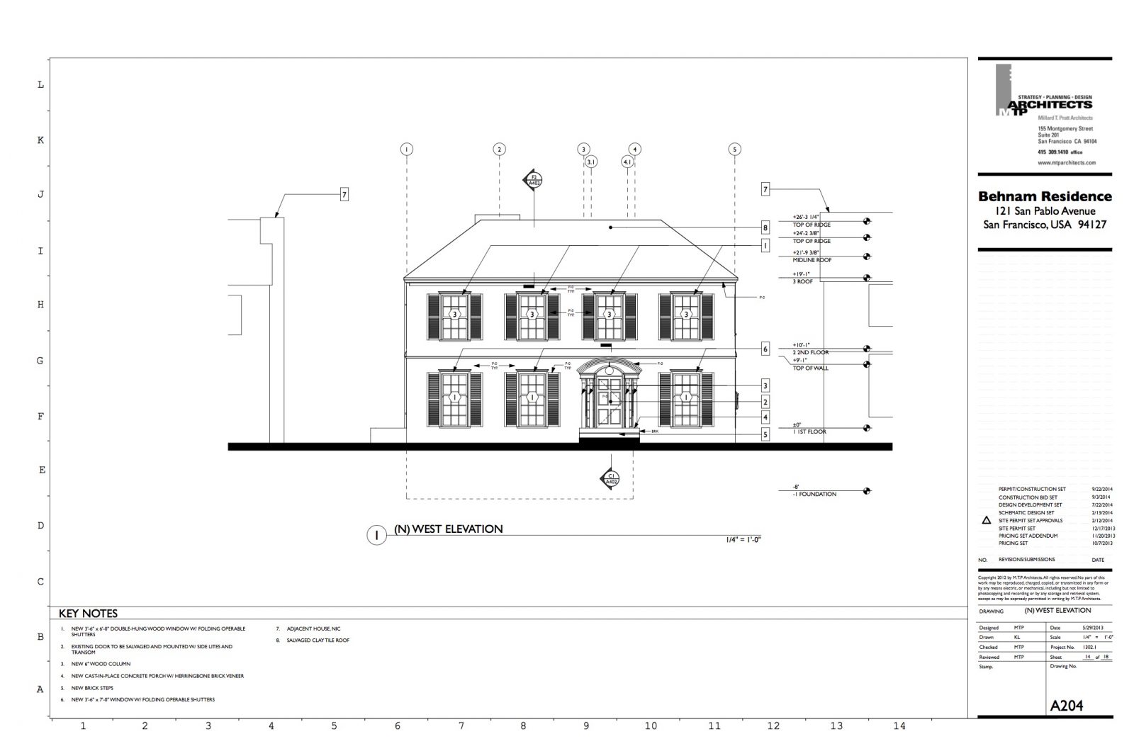
St. Francis Wood Residence
Complete renovation of single-family colonial home (2013-15)
Allen Memorial Art Museum
University Club of Palo Alto