Construction administration of renovation. Submittal review & logging, construction sketches, LEED logging (2010–11)

 

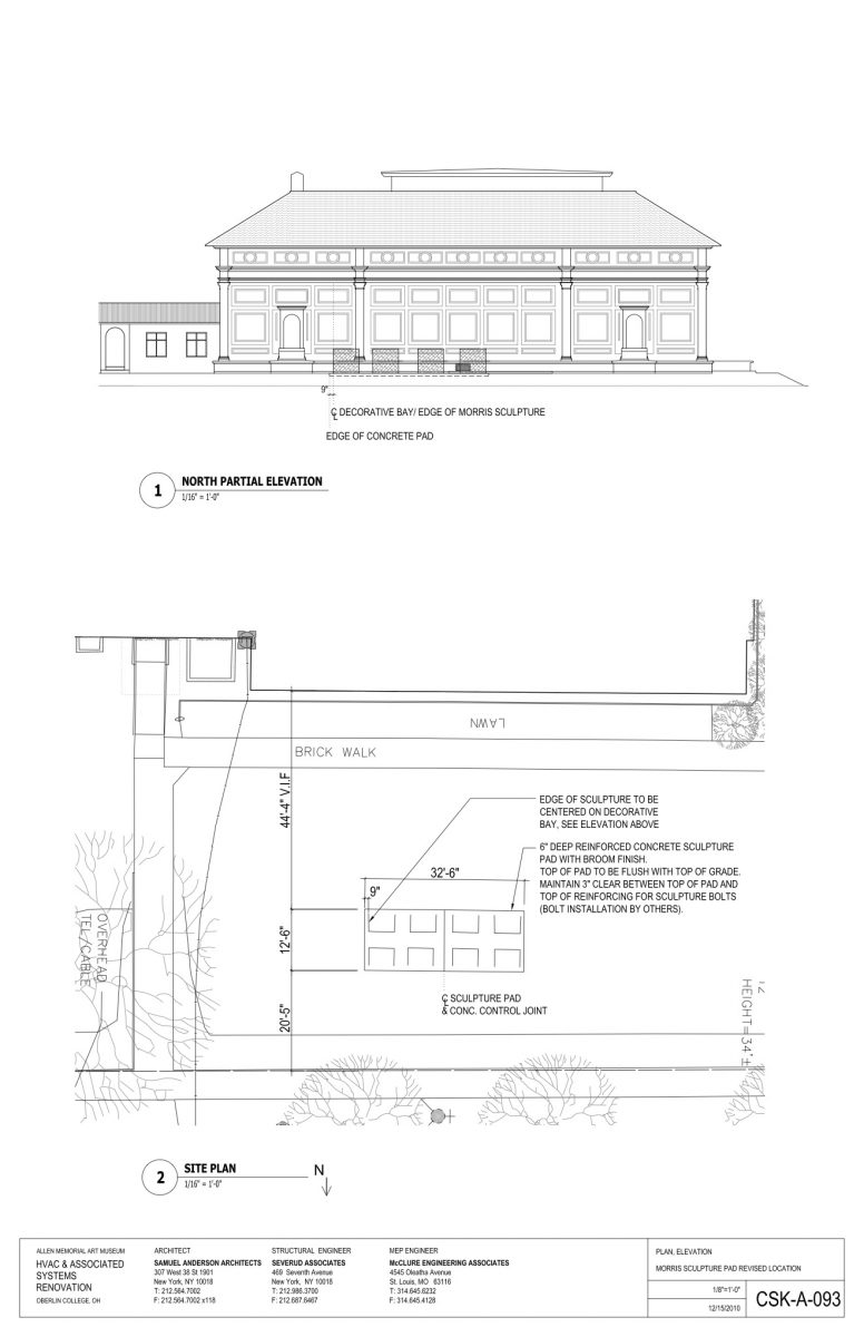
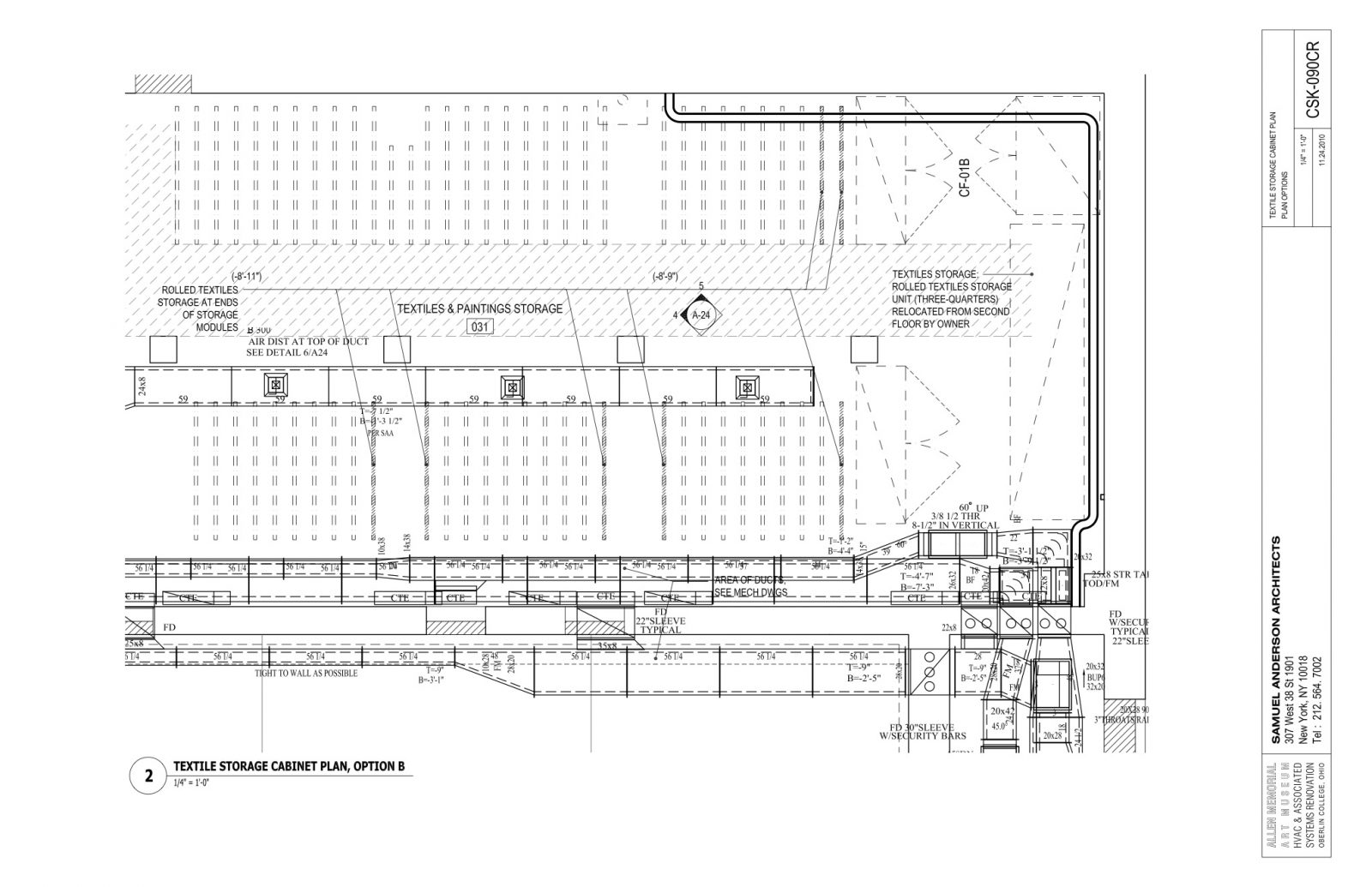
csk-a-086r-break-room-panels csk-a-093-morris-sculpture csk-a-092r-sec-room-viewing-window csk-a-091b_duct_penetration_firestopping csk-a-090cr-cabinets